Services
Project Update 2022
Information about the 2022 project update
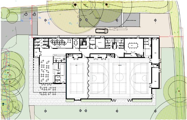
December 2022. The community were invited to two further community events and given the opportunity to comment on the proposals for the new recreational community hub. The facility proposed caters for everyone; social and sporting activities for the youth, general health and wellbeing activities for all and support for local businesses, and future proofed for use for many years to come.
The drop-in sessions were pre-planning feasibility consultations to gauge members of the publics view on what has been suggested that the new building could provide. A second consultation will be held prior to submission of the planning application and at this stage the public will be consulted further, where dimensions and proposed location will be determined.
These documents summarise all the comments received from both drop-in sessions with responses where appropriate. The responses document is a more detailed report on s some of the frequent comments made. All comments and concerns will be given due consideration during the planning application preparation stage.
Following the confirmation that the Government have conditionally approved the application for a £1,000,000 loan, the project will now be moving forward to the design and planning stages.
Further details as the project progresses and details for public consultations will be posted on the website, social media and notice boards.
Documents
- Press Release - Community Project - award of loan
- Community Building Plans Presentation
- Community Engagement - November_December 2022
- Open Session Extraordinary Full Council meeting 7th December 2022 - Response to …
- Initial feasibility plans
- Screenshot 2022-06-28 180731
- Artists impression - small
- Illustrative site plan
- Flyer
- Ground Floor Plan